新着更新新築 東大和市南街1丁目〈新築〉西武拝島線「東大和市」駅徒歩14分 4LDK ZEH水準の省エネ住宅 広々21帖LDK リビングイン階段 家事動線良好 全窓網戸標準装備 並列駐車2台可 食器洗浄乾燥機 浄水器 浴室乾燥機 24時間換気

物件概要
西武拝島線「東大和市」駅徒歩14分・商業施設が徒歩圏内に充実し、日常を快適サポートしてくれます!
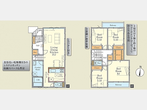
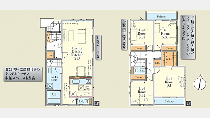
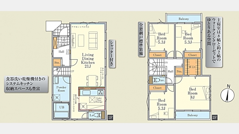
広々21帖のLDKは対面キッチンを採用し収納スペースも豊富です。
2階に4部屋を配したプランで、ご家族一人一人のプライベートを大切にできる間取りとなっています。
主寝室は8帖と広く、ゆったりと過ごせます。
また洋服選びが楽しいウォークインクローゼットもあります。
お車2台並列駐車可能で出し入れに便利です!
| 所在地 交通 |
東京都東大和市南街1丁目 西武拝島線/東大和市 徒歩14分 |
||
|---|---|---|---|
| 価格 | 5,999万円 | ||
| 間取り | 4LDK | 建物面積 | 107.65m² |
| 土地面積 | 134.31m² | 物件種別 | 新築戸建 |
| 築年数 | 2026年06月(予定) | 方位 | - |
| 構造 | - | 階建 | - |
担当者からのコメント
物件は最新の情報を掲載させて頂いておりますが、成約済み、売約済みの場合がございます。
物件の有無、詳細情報は担当者の情報を優先させて頂きます。また、物件の現況はすべてに優先とさせて頂きます。
他にもご紹介可能物件多数ございます!武蔵村山市、立川市、東大和市周辺で、マイホームをお探しのお客様、ぜひ相談ください。
地図・ストリートビュー
GoogleMapを読み込んでいます。
35.741787 139.431780
※GoogleMapを使用しております。位置情報が正しくない場合もございます。参考としてご覧下さい。
物件詳細情報
| 価格 | 5,999万円 | ||
|---|---|---|---|
| その他費用 | |||
| 所在地 | 東京都東大和市南街1丁目 | ||
| 交通 |
西武拝島線/東大和市 徒歩14分 |
||
| 間取り | 4LDK | 間取り内訳 |
LDK 21 畳 1 階 1 室 洋室 8 畳 2 階 1 室 洋室 5.3 畳 2 階 3 室 |
| 建物面積 | 107.65m² | 土地面積(坪数)計測方式 | 134.31m²(40.63坪) - |
| 築年月(築年数) | 2026年06月(予定) | 方位 | - |
| 建物構造 | - | 階建 | - |
| 接道状況 | (北 5.0m 公道 ) | ||
| 駐車場 |
駐車可能台数は車種によります。 |
||
| 総戸数 | 土地権利(土地持分) | 所有権 ( - ) | |
| セットバック(後退距離) | 私道負担(面積・割合) | ||
| 都市計画 | 市街化区域 | 地目 | 宅地 |
| 借地料/定借権利金 | - | 借地期間(借地条件) | - |
| 用途地域 |
第一種住居 |
地勢 | |
| 面積(建築/敷地) | -/ - | 建築条件 | - |
| 国土法届出要否 | 不要 | 建ぺい率/容積率 | 60%/200% |
| その他法令上の制限 | |||
| 引渡 | 相談 | 現況(予定年月) | |
| 設備・条件 | システムキッチン、カウンターキッチン、食洗機、浄水器、トイレ2ヶ所、温水洗浄便座、浴室乾燥機、追い焚き、24時間換気システム、ウォークインクローゼット、TVドアホン、バルコニー、所有権、 | ||
| 備考 | |||
| 周辺施設 | |||
| 物件番号 | 11326 | 取引態様 | 仲介 |
| 情報登録日 | 2026年03月15日 | ||

























