新着更新 立川市砂川町8丁目〈中古〉西武拝島線「武蔵大和」駅から徒歩12分 3LDK 室内表装工事予定 ペット可(細則あり)

物件概要
西武拝島線「武蔵砂川」駅から徒歩12分
室内表装工事予定です。
大切なペットと一緒に暮らせます。(犬猫1匹まで・細則あり)
近隣にある「イオンモールむさし村山は映画館・イベント・アミューズメント・ショッピングなどご家族みんなが楽しめる複合施設です!
| 名前 | 【中古マンション】立川市砂川町8丁目〈中古〉西武拝島線「武蔵大和」駅から徒歩12分 3LDK 室内表装工事予定 ペット可(細則あり) | ||
|---|---|---|---|
| 所在地 交通 |
東京都立川市砂川町8丁目 西武拝島線/武蔵砂川 徒歩12分 |
||
| 価格 | 2,980万円 | ||
| 間取り | 3LDK | 専有面積 | 76.86m² |
| バルコニー | 16.04m² | 物件種別 | 中古マンション |
| 築年数 | 2006年02月(築20年) | 方位 | - |
| 構造 | - | 所在階 | 5階 |
| 階建 | - | 総戸数 | 58戸 |
担当者からのコメント
物件は最新の情報を掲載させて頂いておりますが、成約済み、売約済みの場合がございます。
物件の有無、詳細情報は担当者の情報を優先させて頂きます。また、物件の現況はすべてに優先とさせて頂きます。
他にもご紹介可能物件多数ございます!武蔵村山市、立川市、東大和市周辺で、マイホームをお探しのお客様、ぜひ相談ください。
地図・ストリートビュー
GoogleMapを読み込んでいます。
35.730895 139.397968
※GoogleMapを使用しております。位置情報が正しくない場合もございます。参考としてご覧下さい。
物件詳細情報
| 価格 | 2,980万円 | 管理費・共益費 | 1.49万円 |
|---|---|---|---|
| 修繕積立金 | 0.584万円 | ||
| その他費用 | |||
| 所在地 | 東京都立川市砂川町8丁目 | ||
| 交通 |
西武拝島線/武蔵砂川 徒歩12分 |
||
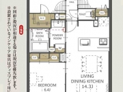
| 間取り | 3LDK | 間取り内訳 |
LD 12.2 畳 K 3.6 畳 和室 6 畳 洋室 7.2 畳 洋室 5.6 畳 |
| 専有面積 | 76.86m² | バルコニー面積 | 16.04m² |
| 築年月(築年数) | 2006年02月(築20年) | 方位 | - |
| 建物構造 | - | 所在階/階建 | 5階 / - |
| 駐車場 | |||
| 総戸数 | 58戸 | 土地権利(土地共有持分) | 所有権 |
| 借地料/定借権利金 | - | 借地期間(借地条件) | - |
| 用途地域 | 地勢 | ||
| 面積(建築/敷地) | -/ - | 国土法届出要否 | 不要 |
| その他法令上の制限 | |||
| 引渡 | 相談 | 現況(予定年月) | |
| 管理 | 管理人/巡回、管理形態/全部委託、管理組合/無、 | ||
| 設備・条件 | カウンターキッチン、バス・トイレ別、ウォークインクローゼット、バイク置き場、駐輪場、エレベータ、バルコニー、ペット対応、ペット相談、2階以上、所有権、都市ガス、 | ||
| 備考 | |||
| 周辺施設 | |||
| 物件番号 | 11293 | 取引態様 | 仲介 |
| 情報登録日 | 2026年02月14日 | ||

























