多摩モノレール「上北台」駅徒歩30秒の好立地!
商業施設が充実し、日常を快適サポートしてくれます!
2025年11月末リノベーション完成予定!
バルコニーから眺望が最高な9階部分です。
| 価格 | 4,150万円 | ||
|---|---|---|---|
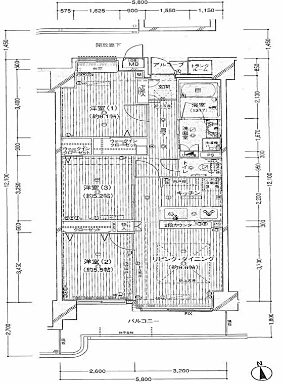
| 間取り | 3LDK | 専有面積 | 68.59m² |
| 築年月 | 2003年10月 | 所在階 | 9階 |
| 所在地 | 東京都東大和市立野2丁目 | ||
| 交通 |
多摩モノレール/上北台 徒歩1分 |
||
物件は最新の情報を掲載させて頂いておりますが、成約済み、売約済みの場合がございます。
物件の有無、詳細情報は担当者の情報を優先させて頂きます。また、物件の現況はすべてに優先とさせて頂きます。
他にもご紹介可能物件多数ございます!武蔵村山市、立川市、東大和市周辺で、マイホームをお探しのお客様、ぜひ相談ください。
| 価格 | 4,150万円 | ||
|---|---|---|---|
| 管理費 共益費 |
1.3万円 | ||
| 修繕積立金 | 0.761万円 | ||
| その他費用 | |||
| 所在地 | 東京都東大和市立野2丁目 | ||
| 交通 |
多摩モノレール/上北台 徒歩1分 |
||
| 間取り | 3LDK | ||
| 間取り内訳 |
LDK 9.6 畳 洋室 5.5 畳 洋室 5.2 畳 洋室 6.1 畳 |
||
| 専有面積 | 68.59m² | ||
| バルコニー面積 | 9.91m² | ||
| 築年月 (築年数) |
2003年10月(築22年) | ||
| 方位 | - | ||
| 建物構造 | - | ||
| 所在階/階建 | 9階 / 10階建 | ||
| 駐車場 |
空有 -台/
- 5,000円 駐車可能台数は車種によります。 |
||
| 総戸数 | |||
| 土地権利(土地共有持分) | 所有権 | ||
| 借地料/定借権利金 | - | ||
| 借地期間(借地条件) | - | ||
| 用途地域 | |||
| 地勢 | |||
| 面積(建築/敷地) | -/ - | ||
| 国土法届出要否 | 不要 | ||
| その他法令上の制限 | |||
| 引渡 | 相談 | ||
| 現況 (予定年月) |
|||
| 管理 | 管理形態/全部委託、管理組合/無、 | ||
| 設備 条件 |
2階以上、駐車場あり、所有権、 | ||
| 備考 | |||
| 周辺施設 | |||
| 物件番号 | 11219 | ||
| 取引態様 | 仲介 | ||
| 情報登録日 | 2025年11月15日 | ||