吉泰不動産株式会社
0120-634-231
  • 物件検索
  • お気に入り
  • 物件観覧履歴

東大和市芋窪4丁目〈新築〉多摩モノレール「上北台」駅徒歩18分 商業施設や公園など周辺施設が充実しており ご家族みんなが安心出来る住環境です。建物も住宅性能評価7項目最高等級の他、建物、地盤の保証も充実 全12棟①号棟

新着更新新築
お気に入りに追加
物件を問い合わせる

物件の特徴

商業施設や公園など周辺施設が充実しており ご家族みんなが安心出来る住環境です。
建物も住宅性能評価7項目最高等級の他、建物、地盤の保証も充実しています。
全12棟①~④・⑪・⑫号棟の販売です。

物件概要

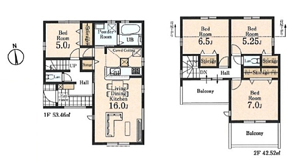
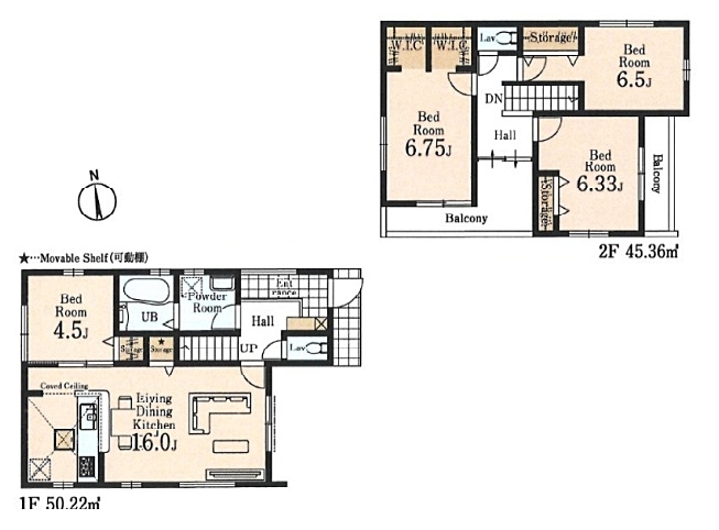
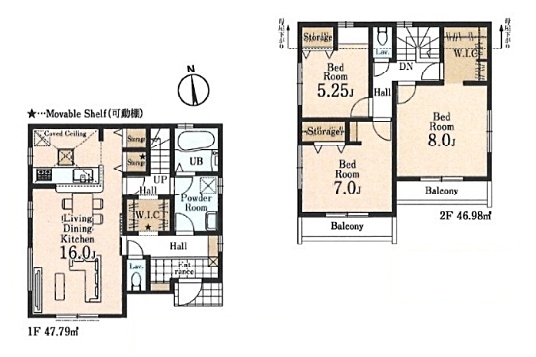
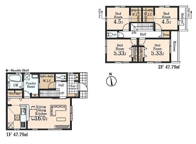
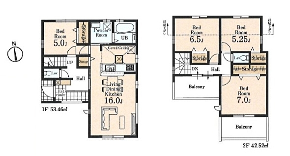
価格 3,880万円 間取り 4LDK
建物面積 96.39m² 土地面積 127.26m²
築年月 2026年07月 階建 -
所在地 東京都東大和市芋窪4丁目
交通 多摩モノレール/上北台 徒歩18分

フォトアルバム

※クリックで画像を拡大表示します。

担当者コメント

物件は最新の情報を掲載させて頂いておりますが、成約済み、売約済みの場合がございます。
物件の有無、詳細情報は担当者の情報を優先させて頂きます。また、物件の現況はすべてに優先とさせて頂きます。
他にもご紹介可能物件多数ございます!武蔵村山市、立川市、東大和市周辺で、マイホームをお探しのお客様、ぜひ相談ください。

物件詳細情報

価格 3,880万円
その他費用
所在地 東京都東大和市芋窪4丁目
交通 多摩モノレール/上北台 徒歩18分
間取り 4LDK
間取り内訳
建物面積 96.39m²
土地面積
(坪数)
計測方式
127.26m²(38.50坪) -
築年月
(築年数)
2026年07月(予定)
方位 -
建物構造 -
階建 -
接道状況
駐車場
駐車可能台数は車種によります。
総戸数 12戸
土地権利
(土地持分)
所有権 ( - )
セットバック(後退距離)
私道負担
(面積・割合)
都市計画 市街化区域
地目 宅地
借地料
定借権利金
-
借地期間
(借地条件)
-
用途地域 第一種低層住居専用
地勢
面積
(建築/敷地)
-/ -
建築条件 -
国土法届出要否 不要
建ぺい率
容積率
40%/80%
その他法令上の制限
引渡 相談
現況
(予定年月)
設備
条件
システムキッチン、浄水器、トイレ2ヶ所、温水洗浄便座、浴室乾燥機、追い焚き、24時間換気システム、TVドアホン、バルコニー、所有権、
備考
周辺施設
物件番号 11353
取引態様 仲介
情報登録日 2026年03月29日
この物件の地図を表示
お気に入りに追加
物件を問い合わせる
  • モバイル
  • |PCサイト
  • プライバシーポリシー
  • |会社概要
  • |お問い合わせ
copyright 2012 © yoshiyasu. All rights reserved.