吉泰不動産株式会社
0120-634-231
  • 物件検索
  • お気に入り
  • 物件観覧履歴

武蔵村山市神明3丁目〈新築〉多摩モノレール「上北台」駅徒歩14分 4LDK オール電化 リビングイン階段 制震ダンパー 24時間換気 食器洗浄乾燥機 駐車2台可

新着更新新築
お気に入りに追加
物件を問い合わせる

物件の特徴

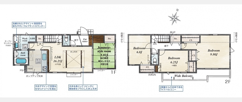
人気の対面キッチン採用のLDKは個室にもリビングの続き間にも自由に活用できる和室5.92帖を合わせると22帖超えの大空間!ご家族だんらんの素敵な空間になりそうです!
家事動線が良くキッチンと洗面スペースの出入りがスムーズな設計も嬉しいですね!
リビングイン階段で家族とのふれあいを大切にします♪
洗面室は洗練されたデザイン+清潔感を保ちやすいフルフラットカウンターを採用しました。
2部屋から行き来できるワイドバルコニーに面しているのでお布団干しや洗濯干しもラクラクです♪
お車も車種にもよりますが2台並列駐車可能です。

物件概要

価格 3,990万円 間取り 4LDK
建物面積 105.94m² 土地面積 133.52m²
築年月 2026年04月 階建 -
所在地 東京都武蔵村山市神明3丁目
交通 多摩モノレール/上北台 徒歩14分

フォトアルバム

※クリックで画像を拡大表示します。

担当者コメント

物件は最新の情報を掲載させて頂いておりますが、成約済み、売約済みの場合がございます。
物件の有無、詳細情報は担当者の情報を優先させて頂きます。また、物件の現況はすべてに優先とさせて頂きます。
他にもご紹介可能物件多数ございます!武蔵村山市、立川市、東大和市周辺で、マイホームをお探しのお客様、ぜひ相談ください。

物件詳細情報

価格 3,990万円
その他費用
所在地 東京都武蔵村山市神明3丁目
交通 多摩モノレール/上北台 徒歩14分
間取り 4LDK
間取り内訳 LDK 15.2 畳 1 階 1 室
和室 5.9 畳 1 階 1 室
洋室 9.8 畳 2 階 1 室
洋室 6.3 畳 2 階 1 室
洋室 6 畳 2 階 1 室
建物面積 105.94m²
土地面積
(坪数)
計測方式
133.52m²(40.39坪) -
築年月
(築年数)
2026年04月(予定)
方位 -
建物構造 -
階建 -
接道状況 (東 4.0m 公道 )
駐車場
駐車可能台数は車種によります。
総戸数
土地権利
(土地持分)
所有権 ( - )
セットバック(後退距離)
私道負担
(面積・割合)
都市計画 市街化区域
地目 宅地
借地料
定借権利金
-
借地期間
(借地条件)
-
用途地域 第一種低層住居専用
地勢
面積
(建築/敷地)
-/ -
建築条件 -
国土法届出要否 不要
建ぺい率
容積率
40%/80%
その他法令上の制限
引渡 相談
現況
(予定年月)
設備
条件
オール電化、システムキッチン、カウンターキッチン、食洗機、トイレ2ヶ所、24時間換気システム、床下収納、バルコニー、所有権、
備考
周辺施設 市立第三小学校1,180m、市立第三中学校642m、コンビニ距離282m、スーパー距離565m、総合病院距離1,002m
物件番号 11321
取引態様 仲介
情報登録日 2026年03月01日
この物件の地図を表示
お気に入りに追加
物件を問い合わせる
  • モバイル
  • |PCサイト
  • プライバシーポリシー
  • |会社概要
  • |お問い合わせ
copyright 2012 © yoshiyasu. All rights reserved.